HINTE | AM BLESKEWEG
Ausbau und Sanierung
einer Sportstätte
- Bauherrin: Gemeinde Hinte
- Bauzeit:
- 2019-2020 (Gebäude und Kunststoffrasen)
- 2024 (Kunststoff-Rundlaufbahn)
- Kosten:
- 645.000 € (Gebäude)
- 750.000 € (Kunststoffrasen)
- 625.000 € (Rundlaufbahn)
Ausbau und Sanierung
einer Sportstätte
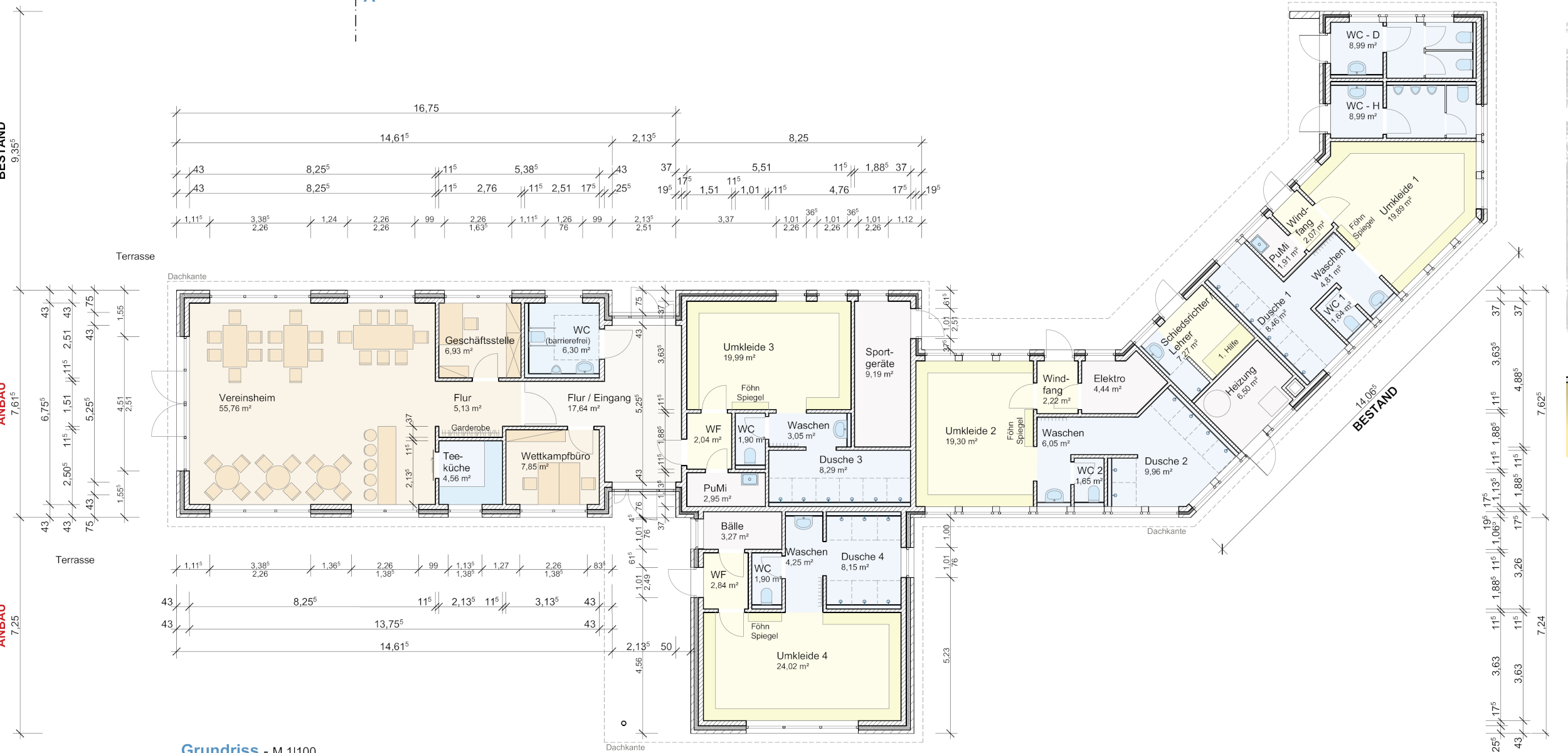
Die Aufgabe einer anderen Sportanlage führte zum Ausbau der Sportstätte am Bleskeweg. Neben einem neuen Kunststoffrasenspielfeld umfassten die Modernisierungsmaßnahmen auch die Sanierung des vorhandenen Funktionsgebäudes und dessen Erweiterung durch einen Anbau.
Durch die gleiche Ausführung von Außentüren und Fenstern sowie die an das Bestandsgebäude angelehnte Dachkonstruktion ist ein architektonisch geschlossenes Gesamtbild geschaffen worden. In den Neubau integriert sind Umkleiden und Sanitäranlagen, aber auch Räume für die Geschäftsstelle des Vereins und ein Wettkampfbüro.